お部屋の紹介

気品とあたたかみに寛ぐ。泊まる。

景山荘 ダイニングルーム・ツインベッドルーム付客室

水仙之間

湯上りは、ベッドにごろり。               朝夜イス・テーブル席でお部屋食。

「景山荘」の「水仙之間」は唯一、ベッドを設えたお部屋です。 和室とツインベッドルームがある寛ぎのスペースに、源泉の展望風呂が付いております。お風呂上りに、すぐごろりと体を休めることができ、ご高齢のお客様にも喜ばれております。 また、コネクト対応で使われていた隣部屋を、お食事のためのダイニングルームとしてご用意しました。イスとテーブルでご夕食、ご朝食ともにお召し上がりいただけます。食事後のにおいも気になりません。廊下を経ずに行き来ができますので、お二部屋分を贅沢にご利用ください。

水仙之間
水仙之間
水仙之間
水仙之間
水仙之間
水仙之間

お部屋概要

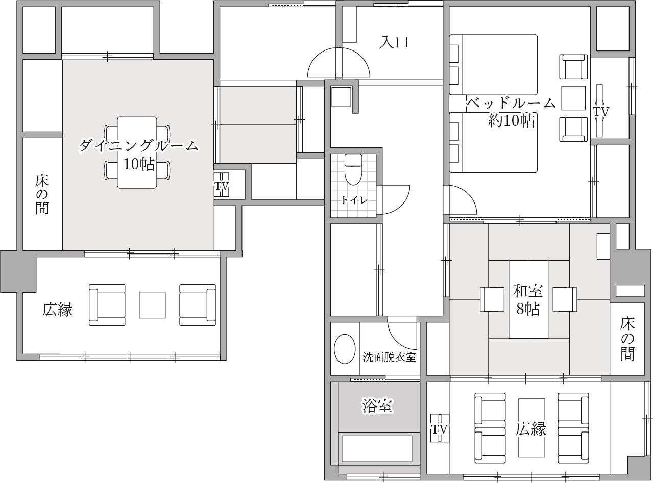
お部屋見取り図

間取り本間8帖・ダイニングルーム・ツインベッドルーム・踏込・広縁・小庭
定員1名~6名様
夕食ダイニングルーム:会席料理
朝食ダイニングルーム:朝のご定食
客室設備展望風呂/洗面台/トイレ(ウォッシュレット)/テレビ/電話/冷蔵庫/電気ポット/セーフティーボックス/お茶セット一式
アメニティバスタオル/ハンドタオル/歯ブラシ/ドライヤー/シャンプー/リンス/ボディーソープ
貸出備品ドライヤー/扇風機/車椅子/体温計/電気ストーブ/折り畳み式ベット/毛布/アイロン/ちゃんちゃんこ/水枕/色浴衣(フロント)
サービスマッサージ(最終受付23時)
お煙草全客室禁煙です。お煙草は所定の喫煙所にてお願いいたします。

空室カレンダー

2026年03月